

Top Rated around globe
RésidenceFirst:UnProjetÉcologiqueetHautStandingdeMaisonDurable
Tous les appartements disposent d’espaces extérieurs (terrasses ou balcons) et ont tous au moins une ouverture sur l’avenue Mohamed V.

Locaux commerciaux
Appartements
Places de parking
Larésidenceestsituéeà:
20 minutes à pieds de l’avenue Roosevelt (La Goulette), célèbre pour
ses nombreux restaurants de poisson
3 minutes en voiture des berges du Lac 2
10 minutes en voiture de Sidi Bou Saïd
15 minutes en voiture de la zone touristique de Gammarth
Nosplans
Parking
- Parking
- RDC
- Surface
- 199.28 M²
- Nombre de chambre
- 0
- Gym
- Non
- Parking
- Oui
- Godown
- 02 rooms
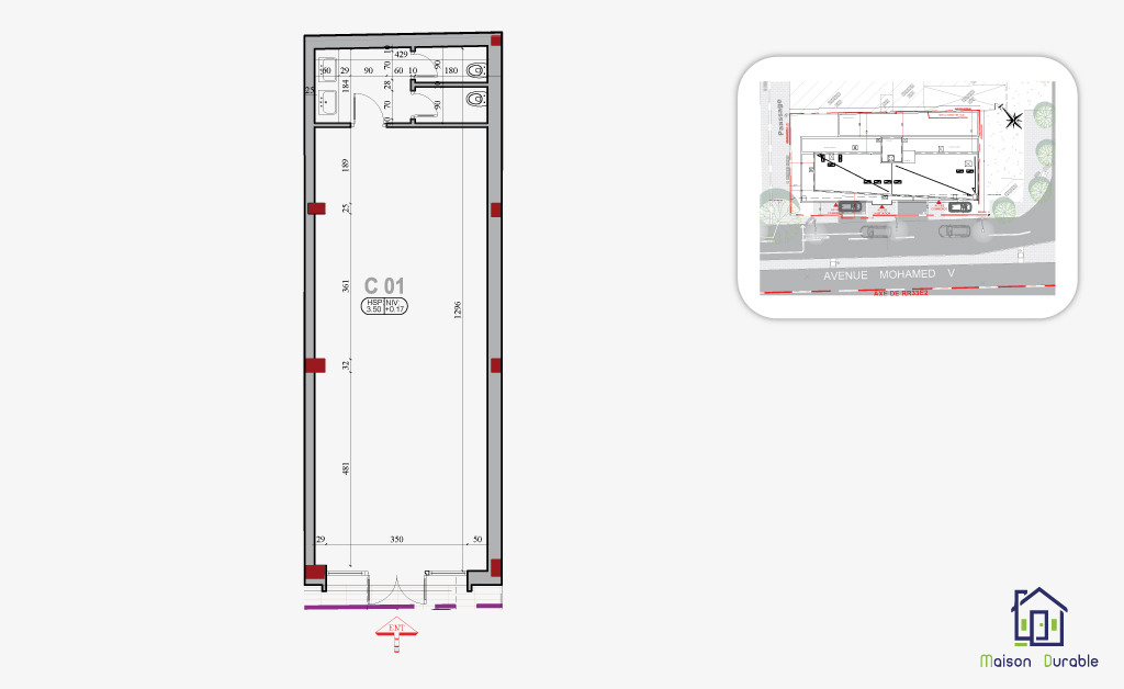
Local Commercial C01
- Commerce
- RDC
- Surface
- 65.23 M²
- Nombre de chambre
- 0
- Gym
- Non
- Parking
- Oui
- Godown
- 02 rooms
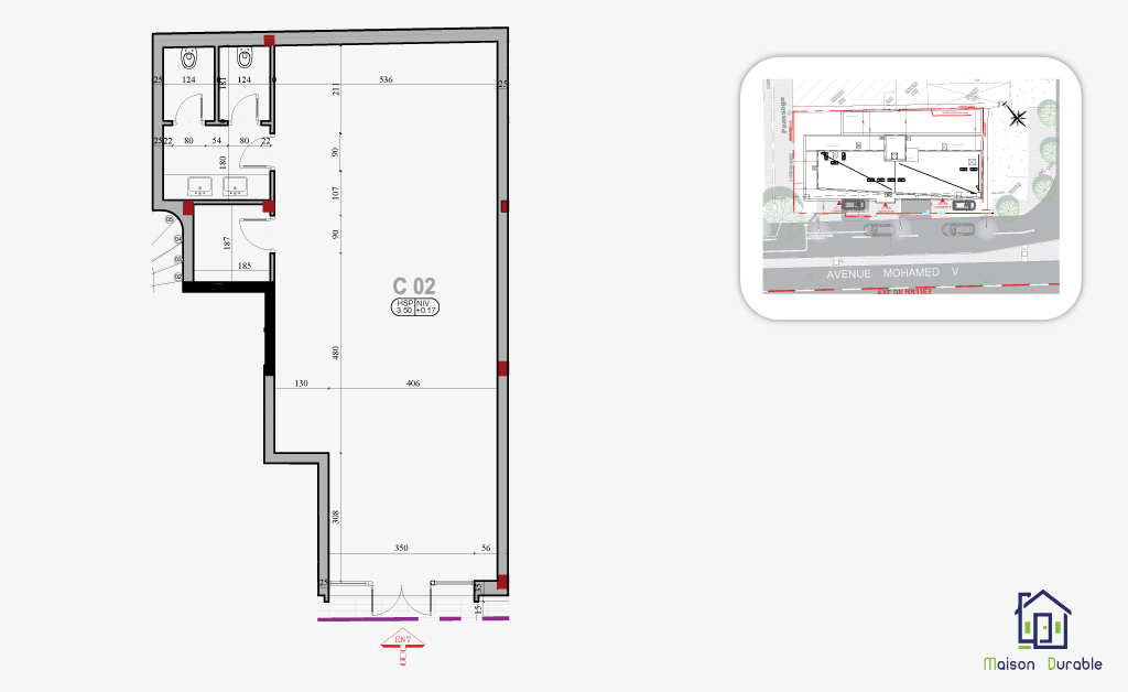
Local Commercial C02
- Commerce
- RDC
- Surface
- 86.86 M²
- Nombre de chambre
- 0
- Gym
- Non
- Parking
- Oui
- Godown
- 02 rooms
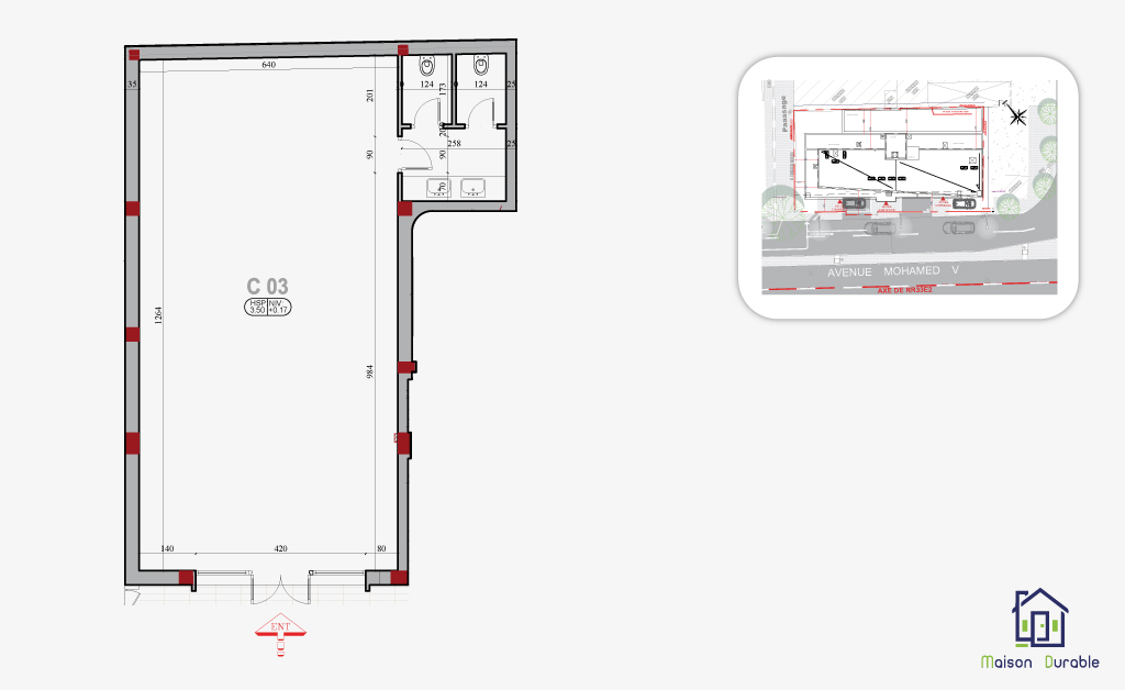
Local Commercial C03
- Commerce
- RDC
- Surface
- 103.23 M²
- Nombre de chambre
- 0
- Gym
- Non
- Parking
- Oui
- Godown
- 02 rooms
Appartement A1.1
- S + 3
- 1er ETAGE
- Surface
- 128.57 M²
- No of Room
- 04 Rooms
- No of Bathrooms
- 02
- Bed Room
- 1 room
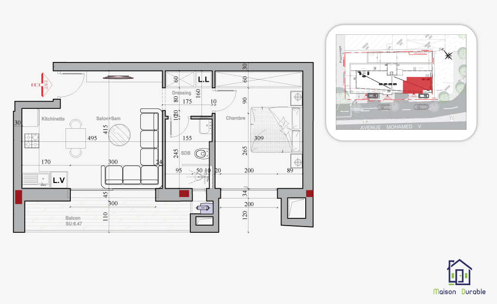
Appartement A1.2
- S + 1
- 1er ETAGE
- Surface
- 62.15 M²
- No of Room
- 03 Rooms
- No of Bathrooms
- 02 Rooms
- Study Space
- 02 rooms
Appartement A1.3
- S + 1
- 1er ETAGE
- Surface
- 62.09 M²
- No of Room
- 03 Rooms
- No of Bathrooms
- 02 Rooms
- Study Space
- 02 rooms
Appartement A1.4
- S + 1
- 1er ETAGE
- Surface
- 67.58 M²
- No of Room
- 03 Rooms
- No of Bathrooms
- 02 Rooms
- Study Space
- 02 rooms
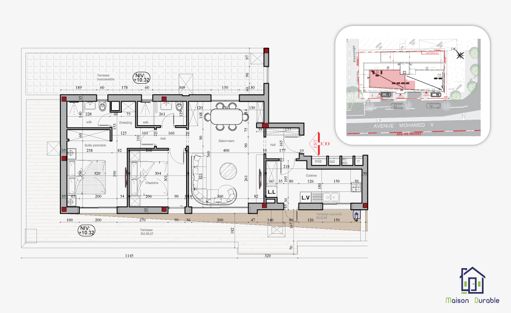
Appartement A2.1
- S + 3
- 2ÈME ÉTAGE
- Surface
- 128.57 M²
- No of Room
- 03 Rooms
- No of Bathrooms
- 02 Rooms
- Study Space
- 02 rooms
Appartement A2.2
- S + 1
- 2ÈME ÉTAGE
- Surface
- 62.15 M²
- No of Room
- 03 Rooms
- No of Bathrooms
- 02 Rooms
- Study Space
- 02 rooms
Appartement A2.3
- S + 1
- 2ÈME ÉTAGE
- Surface
- 62.09 M²
- No of Room
- 03 Rooms
- No of Bathrooms
- 02 Rooms
- Study Space
- 02 rooms
Appartement A2.4
- S + 1
- 2ÈME ÉTAGE
- Surface
- 67.58 M²
- No of Room
- 03 Rooms
- No of Bathrooms
- 02 Rooms
- Study Space
- 02 rooms
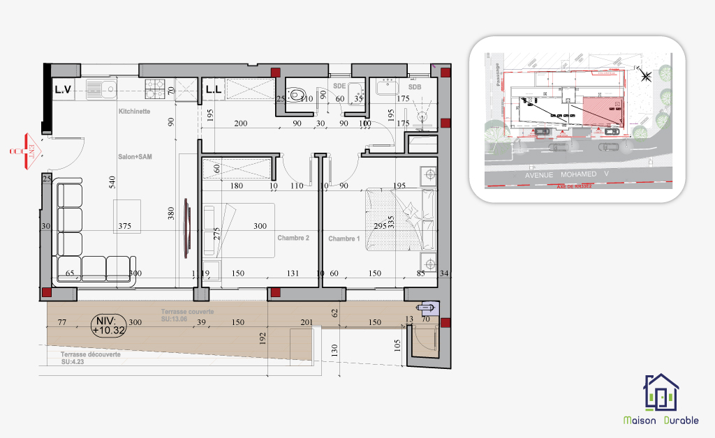
Appartement A3.1
- S + 2
- 3ÈME ÉTAGE
- Surface
- 112.54 M²
- Terrasses/balcon
- 39.27
- No of Bathrooms
- 02 Rooms
- Study Space
- 02 rooms
Appartement A3.2
- S + 2
- 3ÈME ÉTAGE
- Surface
- 92.12 M²
- No of Room
- 03 Rooms
- No of Bathrooms
- 02 Rooms
- Study Space
- 02 rooms
DiscoverYourLittleWorld.
Balcony
Ultricies tristique nulla aliquet enim. In massa tempor nec feugiat. Hac habitasse platea dictumst
Basketball Court
Odio facilisis mauris sit amet massa vitae tortor condimentum lacinia. Velit sed ullamcorper.
Clubhouse
Vitae turpis massa sed elementum tempus egestas sed sed risus. Adipiscing elit duis.
High-End Finishes
Non odio euismod lacinia at quis risus. Erat imperdiet sed euismod nisi porta lorem mollis.
Indoor Gym
Quisque sagittis purus sit amet volutpat. Blandit cursus risus at ultrices mi tempus imperdiet.
Indoor Pool
Donec adipiscing tristique risus nec feugiat in fermentum posuere urna. Ultrices sagittis.
Large Bedroom
Justo nec ultrices dui sapien eget mi. Cras pulvinar mattis nunc sed blandit libero volutpat sed.
Mini Theatre
Eget dolor morbi non arcu risus. Platea dictumst vestibulum rhoncus est pellentesque.
Modular Kitchen
Commodo ullamcorper a lacus vestibulum sed. Malesuada bibendum arcu vitae elementum.
Outdoor Pool
Ac felis donec et odio pellentesque diam volutpat commodo.Vestibulum rhoncus est.
Private Gym
Libero justo laoreet sit amet cursus sit. Semper viverra nam libero justo tincidunt.
Smart Home
At risus viverra adipiscing at in tellus integer feugiat scelerisque. Massa massa ultricies.
Larésidenceestsituéeà:

Unde omnis iste
Sed ut perspiciatis

Nemo enim ipsam
Lorem ipsum dolor

The European languages
Li Europan lingues

One morning, when
Far far away





Sécurité et services

Equipements et confort

Revêtements

Sécurité et services
Résidence gardée – loge gardien au RDC
Accès sécurisé par un digicode
Parking sécurisé et surveillé
Accès contrôlé par visiophone
Caméras de surveillance
Portes d’entrée des appartements en bois massif.
Réception des programmes TV numériques
Voir plus

Equipements et confort
Menuiseries extérieures en profilé aluminium en double vitrage SECURIT.
Murs extérieurs et mitoyens en double cloisons séparées par un isolant pour une meilleure isolation thermique et phonique
Douche à l’italienne avec parois de douche en vitre SECURIT
Climatisation individuelle en multi-split réversible assurant le chauffage et la climatisation
Chauffage central individuel à gaz
Cuisines meublées avec façade en high gloss et équipées de plaques de cuisson, de hotte aspirante et de four
Voir plus

Revêtements
Sols des pièces humides : grès dans la masse antidérapant
Sols des pièces sèches (salon, couloirs, cuisines, chambres) : grès dans la masse
Hall d’entrée : sol en marbre et murs en habillages bois
Portes palières ascenseur : habillage bois frêne
Faux-plafonds en Staff avec incorporation de spot et éclairage d’ambiance en LED
Terrasses : grès dans la masse d’extérieur
Voir plus
Sécuritéetservices

Résidence gardée – loge gardien au RDC

Résidence gardée – loge gardien au RDC

Accès sécurisé par un digicode

(barrière et porte sectionnelles actionnables avec télécommande individuelle) et surveillé
Parking sous-terrain sécurisé

Accès contrôlé par visiophone

Caméras de surveillance

Portes d’entrée des appartements en bois massif.

Ascenseurs desservant tous les niveaux à partir du sous-sol

Détecteur de gaz

Réception des programmes TV numériques





































